DIGITIZE YOUR EXISTING SPACE

AS-BUILT SCANS

Streamline all phases of CRE remodel, retrofit, reuse, and expansion projects with laser scans that create exact digital replicas of your existing property. Build 2D and 3D models of your existing layouts with 360 ground-floor to aerial views. Eliminate site visits, take field measurements, inform design, test constructability, and communicate build progress with digitized models and plans.

Take your scans a step further by using them to develop

STANDARD APPLICATIONS OVER PHASES

PLAN

  • Engage city managers and financers
  • Reverse engineer existing buildings
  • Optimize footprints, wayfinding, production line
  • Inform maintenance plans
  • Create historical references

BUILD

  • Take field measurements
  • Streamline project management
  • Monitor progress and verify milestones
  • Document inspection compliance

LIST

  • Engage buyers in lifelike and walkthrough property visuals
  • Create listing assets that can be easily updated
  • Give accurate appraisal information
  • Communicate future property updates and features

3D CAD MODELS

Create a sharable, precision 3D model of your existing layout. 3D CAD Models save site visits and accelerate decision-making. Inform architectural designs and manage scope changes. Deliverable file types include .XYZ colorized point cloud, .OBJ 3D mesh files with .JPG texture map image files.

2D FLOOR & REFLECTIVE CEILING PLANS

Create a precision 2D layout of your existing property’s floor and ceiling plans. Sharable 2D Floor & Reflective Ceiling plans save on site visits and accelerate decision-making. Inform architectural designs and manage scope changes. Deliverable file types include .JPGs and .PDFs.

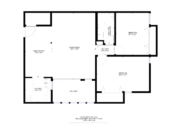
B&W SCHEMATIC FLOOR PLANS

Turn the precision measurements of laser scans into schematic floor plans to increase project management and marketing engagement.

3D VIRTUAL TOURS

Integrate As-Built Scans into Matterport 3D Tours to reduce drive times and miscommunications between project partners and stakeholders. Create listing assets that can be easily updated.

501 Court Ave N | Sandstone
Powered by
CREATIVITY MEETS TECHNOLOGY

FULL SERVICE CAPABILITIES

Ensure accuracy, streamline productions, and deliver high-quality communications. From laser scans to 3D renderings, Content Studios’ talents, techniques, and tech build key feature narratives to instantly connect.

As-Built Scans, Floor & Site Plans, Matterport 3D Virtual Tours

Build Phase Project Highlight

When the City of Sandstone, Minnesota, settled on redeveloping an elementary school into a multi-family housing unit, architects and general contractors turned to Content Studios to ensure constructibility and historic preservation.

With a series of As-Built Scans, Floor & Site Plans, and Matterport 3D Virtual Tours, developers expedited a Revit model that streamlined the design process, ensured historical preservation during construction, and controlled budgets.

FROM INVESTORS TO BUYERS

REACH EVERY COMMERCIAL MILESTONE

Plan • Build • List

Accelerate and realize your commercial project goals for each plan, build, and list phase of commercial real estate.

  • Developers, architects, and designers engage investors, city planners, and council members
  • General contractors align subcontractors and document progress
  • Commercial realtors develop and update listings
  • Brokers develop maintenance and occupancy plans

Start with a single-phase project or develop a comprehensive multi-phased visual communication plan that reduces duplication and increases project understanding and engagement.

FAQs

Laser scans are accurate to 1” to 1/16”, which is within BOMA standards. The 3D data collected is within 1% of reality, and in many cases, this is a more accurate field architect measurements who typically need to return to the property multiple times and remeasure. Accuracy variations depend on the technology and user. Our skilled technicians are well-trained in techniques and use the latest equipment to reduce variability and ensure accurate measurements.

Scans are completed within minutes due to the high-speed capabilities of laser scanners, which grab 2 million data points per second. It is not unusual for CRE properties to include 300-500 scans. Allow for 3-5 production days and 3-5 days for delivery for these size projects.

  • Revit (.Rvt)
  • AutoCAD (.dwg)
  • ArchiCAD (.Pln and .pla along with BIMx viewer)
  • Sketchup (.skp)
  • Xactimate – File formats used for insurance and restoration purposes (.skx and .xml)
  • IFC – Industry Foundation Classes (.stl, .step, .iges, etc.)
  • Floor plans/3D floor plans – (.pdf, .jpg, .png, etc.)
  • Solar Calculations – Usually a small file used specifically within Solar

With offices in New York City, Content Studios works nationwide.

You do not need to be present for productions unless you prefer to be at the property. If it’s your first production with Content Studios, our professionals are happy to meet you on-site.

Weekend productions should be requested 5-7 days in advance.

Capturing ideal conditions and lighting, as well as maintaining consistency, is important to every project. We will take sun and weather into consideration when scheduling, monitor the weather as the shoot approaches, and reschedule if necessary.

Include measurement and room labels to bring your model to life.

When your content is finalized, we will send you a confirmation email with a download and payment link containing all content assets for your property.

WHAT OUR CLIENTS ARE SAVING

Kevin and his team have provided a fantastic customer experience – high quality product, quick turnaround, and friendly service to our team at United Properties. Strongly recommend!”

– Connor McCarthy, United Properties